DEX 106

Odwiedź dom pokazowy

Porozmawiaj z doradcą

  • square_foot

    Pow. użytkowa parteru

    106 m²

  • living

    Główne pomieszczenie

    Salon z aneksem kuchennym

  • bed

    Sypialnie

    3

  • bathroom

    Łazienki i WC

    2

1. Wiatrołap 5,05 m²

2. Strefa living

39,14 m²
3. Schowek 5,14 m²
4. Korytarz 9,49 m²
5. Toaleta 2,45 m²
6. Sypialnia master

14,84 m²

7. Sypialnia 1

12,61 m²

8. Sypialnia 2 11,43 m²
9. Łazienka 5,77 m²

RZUT PARTERU

powierzchnia parteru 106 m²

poddasze nieużytkowe 50 m²

WARIANT A - 106 M²

powierzchnia parteru 106 m²

poddasze użytkowe 75 m²

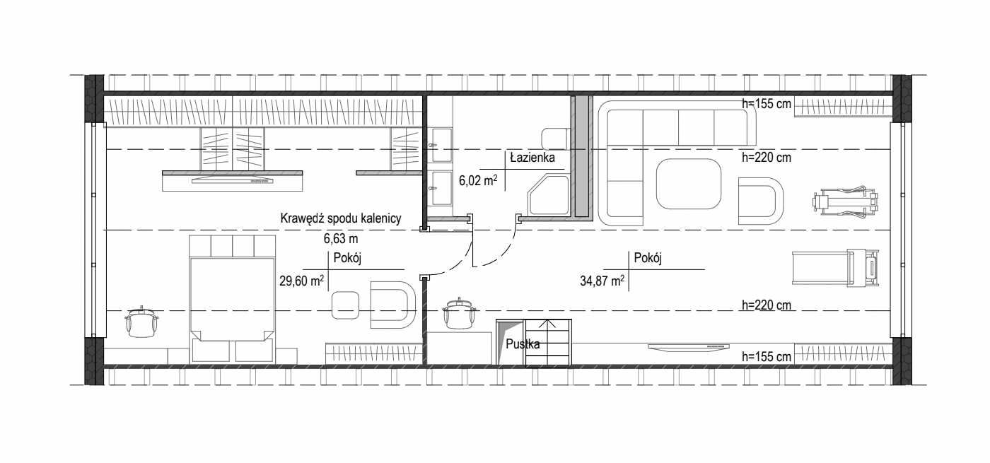
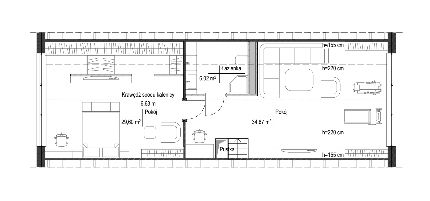
WARIANT C - 181 M²

powierzchnia parteru 106 m²

poddasze użytkowe 40 m²

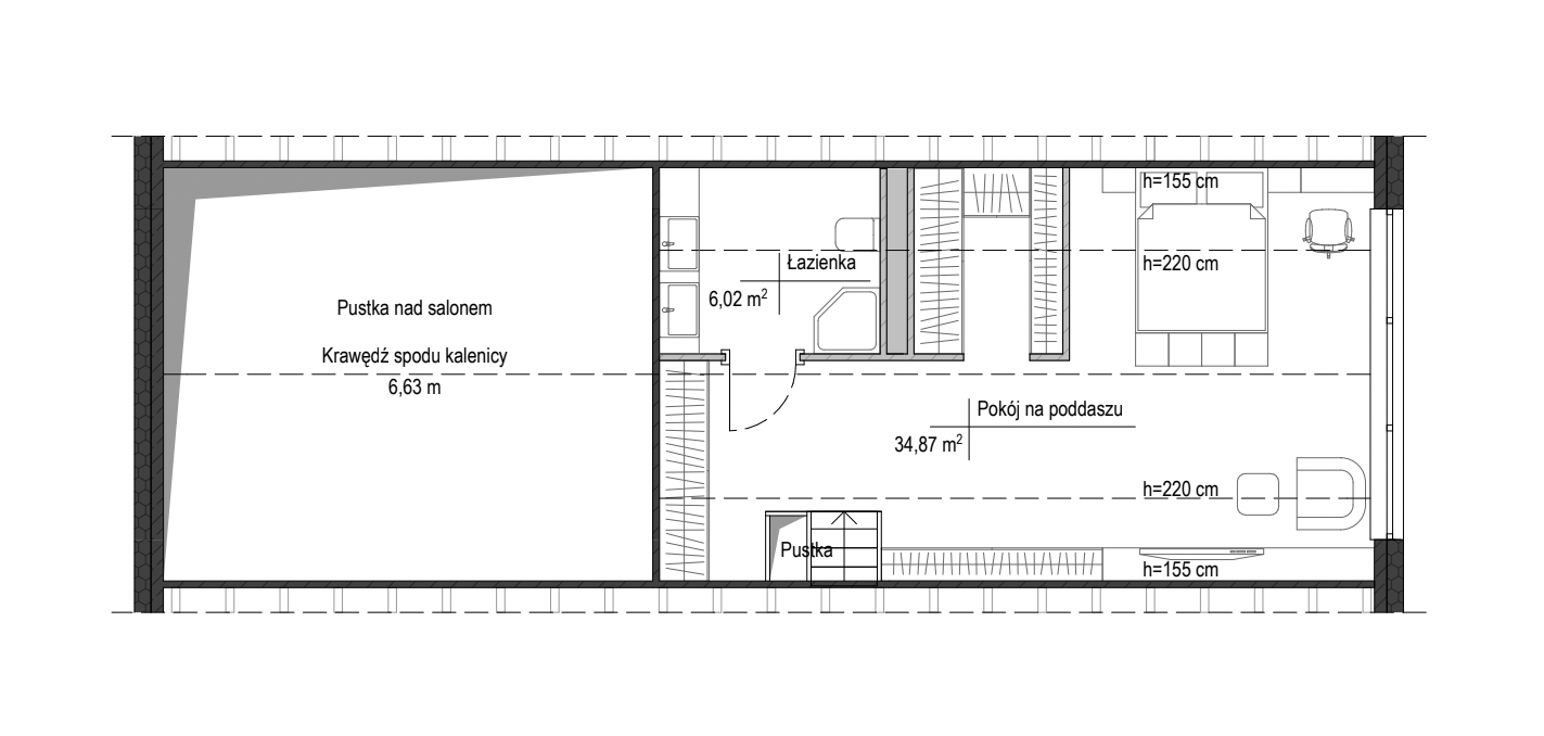
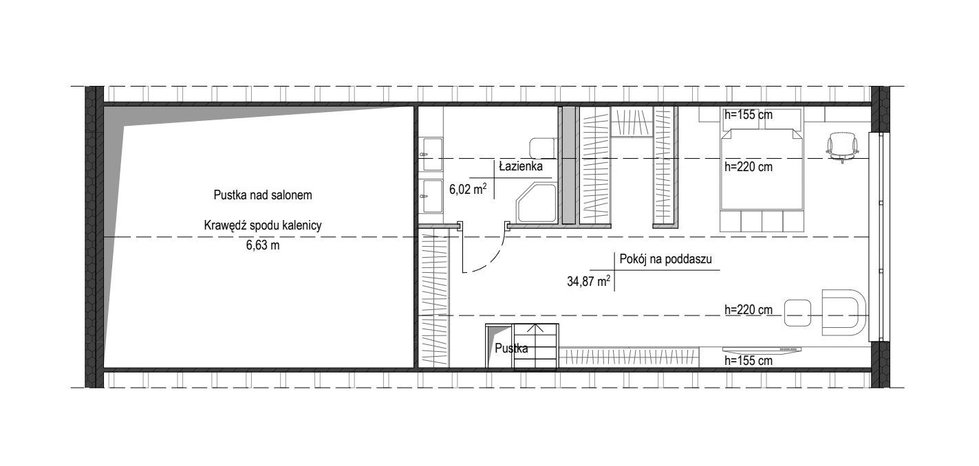
sufit podwyższony nad salonem

WARIANT B - 146 M²

WARIANTY PODDASZA

DEX 106

 

Dom DEX106 posiada powierzchnię parteru powierzchni użytkowej 106 m², który oferuje przestronny salon połączony z kuchnią, 3 niezależne sypialnie, łazienkę i WC. 


DEX 106 ma możliwość 3 konfiguracji poddasza : Wariant A to przestrzeń 50 m² na Twoje przedmioty (tzw. nieużytkowa), wariant B to przestrzeń częściowo użytkowa 40 m² z podwyższonym sufitem nad salonem, oraz wariant C z poddaszem użytkowym 75 m² do dowolnej aranżacji na pokoje, gabinet do pracy, łazienkę.

Minimalne wymiary działki

24,05 m x 18,42 m

Wymiary domu

16,05 m x 10,42 m

Wysokość domu

7,5 m

Kąt nachylenia dachu

32°

Pompa ciepła

Połączona z ogrzewaniem podłogowym
Praca w trybie grzania i chłodzenia

Energia odnawialna

Dach solarny 18 kWp

Magazyn energii 10 kWh

Wentylacja

Wentylacja mechaniczna z rekuperacją
Filtrowanie i nawilżanie powietrza

Dowiedz się więcej o standardzie

SPECYFIKACJA DEX106

Kompletny dom w cenie

To wszystko dostajesz w standardzie - bez dopłat

Żadnych ukrytych kosztów. Każdy dom DexedHome to gotowy system - od fundamentu po inteligentne zarządzanie energią.

architecture

Projekt architektoniczny

Kompletna dokumentacja z adaptacją do działki

check_circle W cenie
foundation

Ciepła płyta fundamentowa

Monolityczna płyta 20 cm - stabilna baza

check_circle W cenie
home_work

Ściany żelbetowe

Prefabrykowana konstrukcja z izolacją EPS 20 cm

check_circle W cenie
solar_power

Zintegrowany dach solarny

Najpotężniejszy dach solarny + inwerter hybrydowy

check_circle W cenie
battery_charging_full

Magazyn energii

Własny prąd 24h - nawet nocą i przy awarii sieci

check_circle W cenie
thermostat

Pompa ciepła NIBE

Ogrzewanie podłogowe + chłodzenie, COP do 4,8

check_circle W cenie
air

Rekuperacja Zehnder

Czyste powietrze 24/7 z odzyskiem ciepła

check_circle W cenie
settings_remote

Funkcje Smart Home

Aplikacje mobilne do zarządzania energią

check_circle W cenie
window

Okna panoramiczne HS

3-szybowe, 6-komorowe, U=0,74 W/m²·K

check_circle W cenie
door_front

Drzwi antywłamaniowe

Energooszczędne drzwi wejściowe premium

check_circle W cenie
bolt

Instalacja elektryczna

Rozdzielnia, przewody i osprzęt - gotowe

check_circle W cenie
roofing

Strych lub poddasze

Przestrzeń nieużytkowa na poddaszu za 0 zł lub opcje mieszkalne

check_circle W cenie

RABAT NA

TRANSPORT!

 

do końca

maja 2026!

*  ⁠Dexed Home podaje zawsze ceny za poszerzony stan deweloperski z kompletem instalacji - dom gotowy do wykończenia wnętrz. Sprawdź zakres prac w zakładce STANDARD.


*  Jeśli chcesz zmienić aranżację wnętrz lub zrezygnować z niektórych opcji standardu zapytaj doradcę o cenę.

 

*  Podane ceny brutto z VAT 8%.  Ceny ważne 30 dni od daty przesłania oferty. Dexed Home odświeża ceny kwartalnie zgodnie ze wskaźnikiem inflacji GUS.


*  ⁠Cena nie zawiera prac ziemnych, transportu w zależności od adresu lokalizacji lub zmian aranżacyjnych.

732 950 zł

6 914 zł/m²

Powierzchnia użytkowa 106 m² + strych 50 m²

WARIANT A -

106 M²: wersja parterowa i strych nieużytkowy

913 471 zł

6 257 zł/m²

146 m² = powierzchnia parteru 106 m² + podwyższony sufit nad salonem + poddasze użytkowe 40 m²

WARIANT B -

146 M²: wersja z poddaszem użytkowym i sufitem podwyższonym

1 034 221 zł

5 714 zł/m²

181 m² = powierzchnia parteru 106 m² + poddasze 75 m²

WARIANT C -

181 M²: wersja z pełnym poddaszem użytkowym

CENA

PRZYJEDŹ!

Umów wizytę!

1. Przekonaj się sam - zobacz na żywo jak wygląda dom

 

2. Poznaj technologie i samowystarczalny system energii z dachem solarnym

 

3. Omów proces budowy na Twojej działce z Doradcą

Odwiedź dom pokazowy

Zaufaj nam i zacznij budować swoją przyszłość już dziś.

© Copyright 2025 -DexedHome.pl

Kontakt z doradcą