UMÓW KONSULTACJĘ

DEX 136

Odwiedź dom pokazowy

Porozmawiaj z doradcą

  • square_foot

    Pow. użytkowa parteru

    136 m²

  • living

    Główne pomieszczenie

    Salon z aneksem kuchennym

  • bed

    Sypialnie

    4

  • bathroom

    Łazienki i WC

    2

1. Wiatrołap 5,07 m²

2. Strefa living

54,3 m²
3. WC 4,39 m²
4. Pom. gospodarcze 3,73 m²
5. Sypialnia 2 12,12 m²
6. Sypialnia 3

11,15 m²

7. Sypialnia master

12,34 m²

8. Sypialnia 1 9,73 m²
9. Łazienka 4,91 m²
10. Garderoba 4,53 m²
11. Korytarz 10,7 m²

RZUT PARTERU

powierzchnia parteru 136 m²

poddasze nieużytkowe 53 m²

WARIANT A - 136 M²

powierzchnia parteru 136 m²

poddasze użytkowe 88 m²

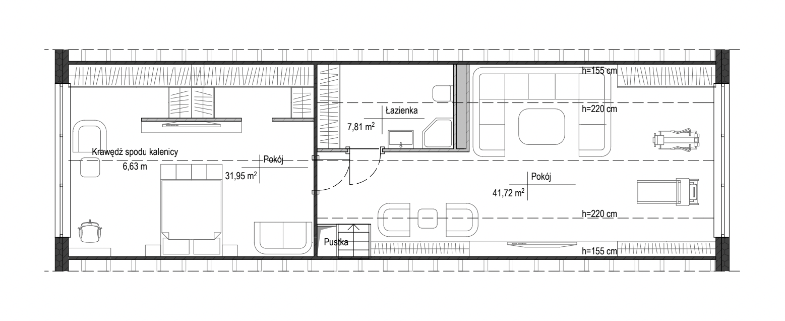
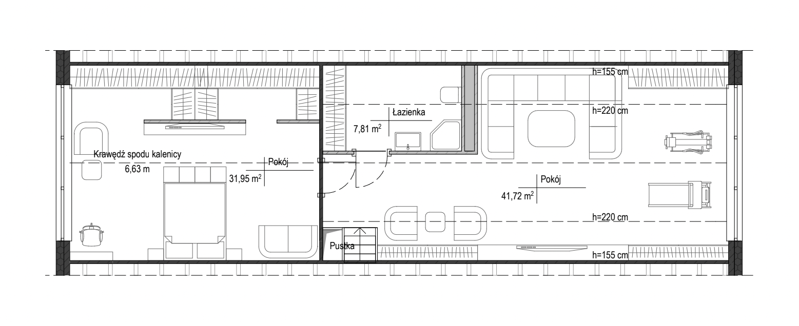
WARIANT C - 224 M²

powierzchnia parteru 136 m²

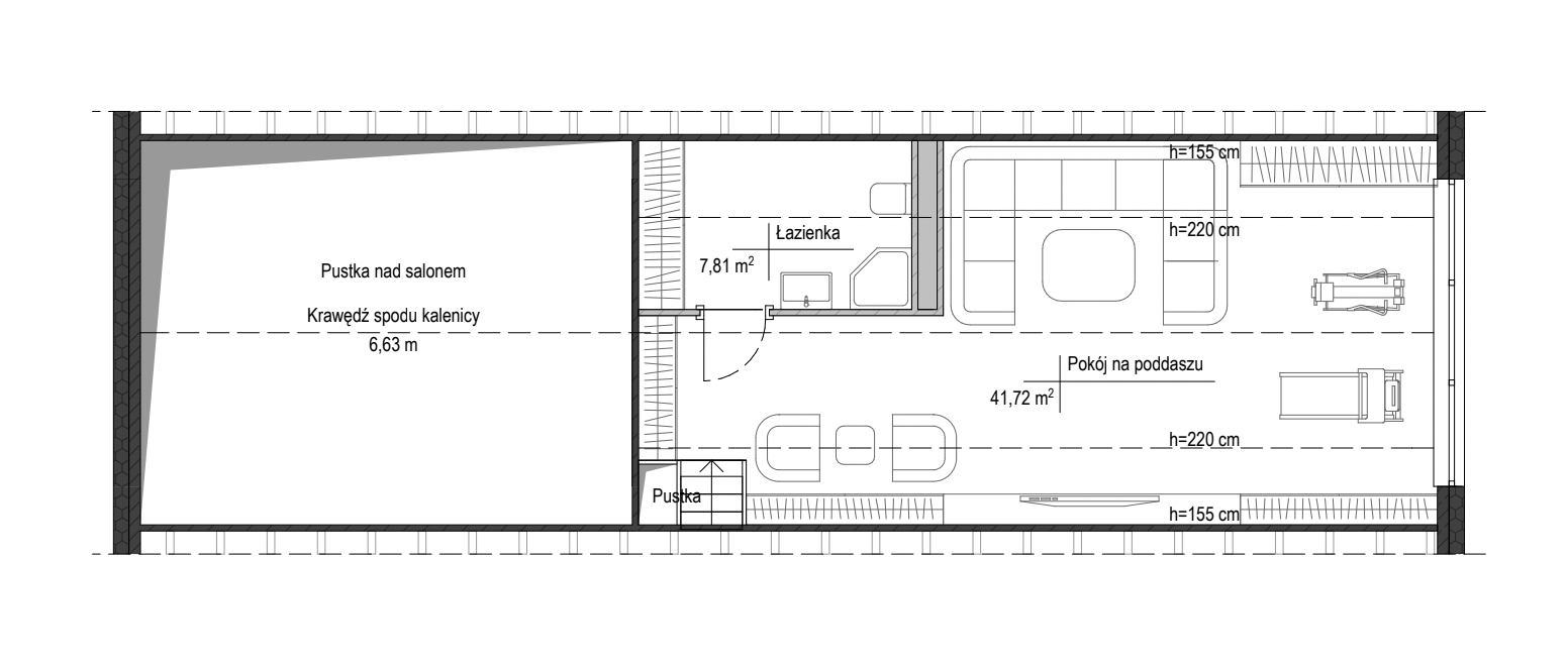
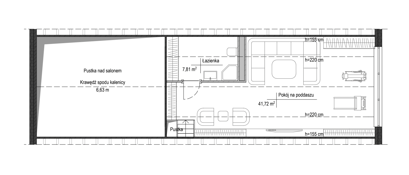
poddasze użytkowe 47 m²

sufit podwyższony nad salonem

WARIANT B - 183 M²

WARIANTY PODDASZA

DEX 136

 

Dom DEX136 posiada powierzchnię parteru powierzchni użytkowej 136 m², który oferuje ogromny salon z panoramicznymi oknami, połączony z kuchnią, 4 niezależne sypialnie, łazienkę i WC. 


DEX 136 ma możliwość 3 konfiguracji poddasza : Wariant A to przestrzeń 53 m² na Twoje przedmioty (tzw. nieużytkowa), wariant B to przestrzeń częściowo użytkowa 47 m² z podwyższonym sufitem nad salonem, oraz wariant C z poddaszem użytkowym 88 m² do dowolnej aranżacji na pokoje, gabinet do pracy, strefę sportową, łazienkę lub garderobę.

Minimalne wymiary działki

26,08 m x 18,38 m

Wymiary domu

18,08 m x 10,38 m

Wysokość domu

7,5 m

Kąt nachylenia dachu

32°

Pompa ciepła

Połączona z ogrzewaniem podłogowym
Praca w trybie grzania i chłodzenia

Energia odnawialna

Dach solarny 20 kWp

Magazyn energii 15 kWh

Wentylacja

Wentylacja mechaniczna z rekuperacją
Filtrowanie i nawilżanie powietrza

Dowiedz się więcej o standardzie

SPECYFIKACJA DEX136

RABAT NA

TRANSPORT!

 

do końca

maja 2026!

RABAT NA

TRANSPORT!

 

do końca

maja 2026!

*  ⁠Dexed Home podaje zawsze ceny za poszerzony stan deweloperski z kompletem instalacji - dom gotowy do wykończenia wnętrz. Sprawdź zakres prac w zakładce STANDARD.


*  Jeśli chcesz zmienić aranżację wnętrz lub zrezygnować z niektórych opcji standardu zapytaj doradcę o cenę.

 

*  Podane ceny brutto z VAT 8%.  Ceny ważne 30 dni od daty przesłania oferty. Dexed Home odświeża ceny kwartalnie zgodnie ze wskaźnikiem inflacji GUS.


*  ⁠Cena nie zawiera prac ziemnych, transportu w zależności od adresu lokalizacji lub zmian aranżacyjnych.

895 700 zł

6 586 zł/m²

Powierzchnia użytkowa 136 m² + strych 53 m²

WARIANT A -

136 M²: wersja parterowa i strych nieużytkowy

1 114 159 zł

6 088 zł/m²

183 m² = powierzchnia parteru 136 m² + podwyższony sufit nad salonem + poddasze użytkowe 47 m²

WARIANT B -

183 M²: wersja z poddaszem użytkowym i sufitem podwyższonym

1 256 959 zł

5 611 zł/m²

224 m² = powierzchnia parteru 136 m² + poddasze 88 m²

WARIANT C -

224 M²: wersja z pełnym poddaszem użytkowym

CENA

PRZYJEDŹ!

Umów wizytę!

1. Przekonaj się sam - zobacz na żywo jak wygląda dom

 

2. Poznaj technologie i samowystarczalny system energii z dachem solarnym

 

3. Omów proces budowy na Twojej działce z Doradcą

Odwiedź dom pokazowy

Zaufaj nam i zacznij budować swoją przyszłość już dziś.

© Copyright 2025 -DexedHome.pl

Kontakt z doradcą