SKONTAKTUJ SIĘ

Z DORADCĄ

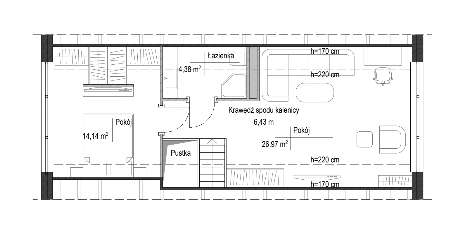
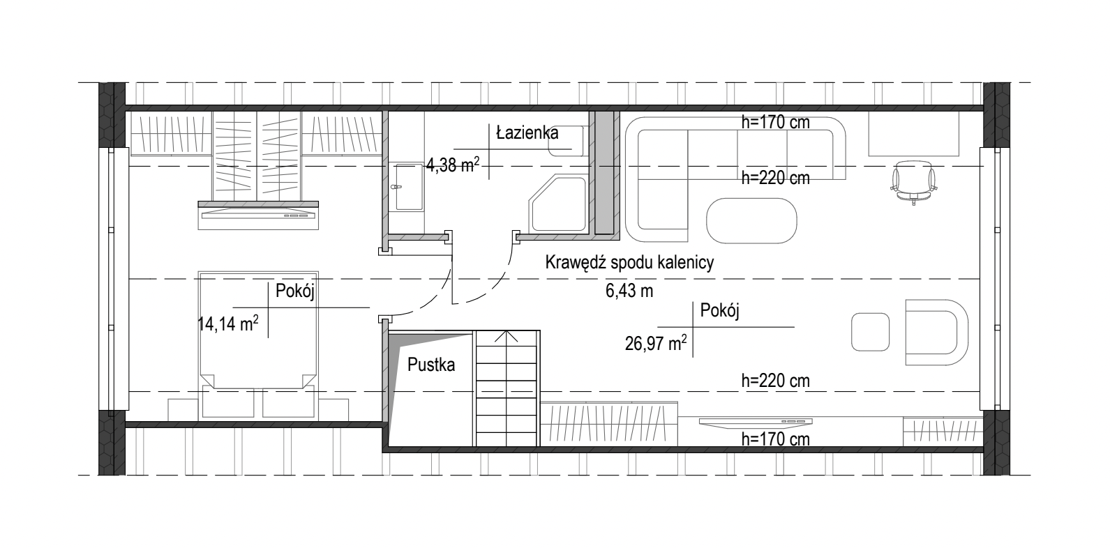
Dex 76 to komfortowy dom parterowy o powierzchni użytkowej 76 m², którego przestrzeń została optymalnie zaprojektowana dla 2 sypialni. Dodatkowo, na piętrze
znajduje się przestrzeń o ograniczonej nośności
o powierzchni 38 m² - czyli strych na przechowywanie Twoich przedmiotów.

 

To wygodny dom dla singli, pierwszego domu dla młodych rodzin jak i dojrzałych par bez dzieci, oraz tych, którzy docenią mniejsze przestrzenie. Dom oferuje - jak wszystkie projekty kolekcji DEX - duże przeszklenia w przestronnym komfortowym salonie połączonym z kuchnią, z wyjściem na ogród, oraz łazienkę i 2 sypialnie (lub sypialnię i gabinet). To wszystko w funkcjonalnym układzie, gwarantującym praktyczne rozwiązania dla codziennych potrzeb mieszkańców. Dzięki swojemu uniwersalnemu projektowi, może pasować do większości działek, zapewniając łatwy i bezpieczny dostęp do każdego pomieszczenia. 

DEX 76

1. Wiatrołap                      3,80 m²   

2. Strefa living                 32,4 m²

3. Sypialnia master       12,83 m²

4. Pom. gospodarcze    5,96 m²

5. Sypialnia 2                  8,75 m²

6. Łazienka                      5,11 m²

7. Korytarz                       7,38m²

WYMIARY DOMU

13,88 m x 8,93 m

Więcej o standardzie

STANDARD

Wygoda połączona jest z praktycznym podejściem - dom został zaprojektowany z intencją samowystarczalności poprzez technologie : dach solarny, pompa ciepła i ogrzewanie podłogowe spełniają nadchodzące w najbliższych latach surowe normy unijne : zero szkodliwych emisjiniewielkie rachunki za prąd. Dodatkowo instalujemy niezbędny magazyn energii wraz z wentylacją mechaniczną z rekuperacją.

Możliwe konfiguracje

*  ⁠Dexed Home podaje zawsze ceny za kompletny stan deweloperski - dom gotowy do wykończenia wnętrz. Sprawdź zakres prac w zakładce standard.


*  Podane ceny brutto z VAT 8%.  Ceny obowiązują do 31 grudnia 2025.


*  ⁠Cena nie zawiera prac ziemnych, transportu w zależności od adresu lokalizacji lub zmian aranżacyjnych.

504 944 zł

6 644 zł/m²

Powierzchnia użytkowa 76 m² + strych 38 m²

76 M² : wersja parterowa i strych nieużytkowy

621 944 zł

6 219 zł/m²

100 m² = powierzchnia parteru 76 m² + podwyższany sufit nad salonem + antresola 24 m²

100 M² : wersja z antresolą i sufit podwyższony

688 944 zł

5 647 zł/m²

122 m² = powierzchnia parteru 76 m² + poddasze 46 m²

122 M² : wersja z pełnym poddaszem użytkowym

CENA

PRZYJEDŹ!

Odwiedź dom pokazowy

1. Przekonaj się sam - zobacz na żywo jak wygląda dom
2. Poznaj technologie i samowystarczalny system energii z dachem solarnym
3. Omów proces budowy na Twojej działce z Doradcą

Umów się!

Pakiety korzyści - tyle zyskujesz kupując wersję PREMIUM

brass quilt pen

Pakiet Oszczędności 1 - Pakiety połączone wersja PREMIUM

71,768.85 zł

the new york times newspaper

Pakiet Oszczędności 2 - poddasze nieużytkowe - strych na przechowywanie - gratis        (metraż m2)

144,790.13 zł

person holding white electric plug

Pakiet Oszczędności  3 - niezależność energetyczna - 10 lat oszczędności na energii

66,970 zł

Pakiet Oszczędności 4 - dotacja mój prąd*, moje ciepło* (*wniosek składasz po oddaniu budynku do użytku, ostateczna wartość dotacji jest uzależniona od spełnienia aktualnie obowiązujących warunków dotacji)

30,000 zł

person holding pencil near laptop computer

PAKIET KORZYSCI RAZEM : Tyle zyskujesz w rabatach, oszczędnościach i dopłatach

241,760.13 zł

green plant in clear glass cup

Dodatki płatne

41,827.20 zł

01. Ciepły fundament

21,000.00 zł

02. Podwyższony Sufit nad salonem

10,000.00 zł

03. Obsługa formalności 

wycena ind. (stawka za km, postój, nocleg, etc)

05. Transport materiałów

4,000 zł / m2

04. Garaż (1 - 1,5 - 2 - 2,5 miejsc)

Odkryj nasz cennik już dziś!

Podstawowy Pakiet

Nasz podstawowy pakiet oferuje wszystko, co potrzebne do rozpoczęcia przygody.

3810.27 zł/m2

Co jest w zestawie?

→ Ściany konstrukcyjne z prefabrykatów żelbetowych

→ Konstrukcja dachu z drewnianych wiązarów

→ strop drewniany - dolny pas wiązara,
pokrycie dachu , blacha na rąbek

→ okna 3-szybowe , 6-komorowe PVC/ HST 5 - komorowy

→ drzwi wejściowe antywłamaniowe

→ montaż domu na działce

Rozszerzony Pakiet

Rozszerzony pakiet zapewnia dodatkowe funkcje i komponenty, które zwiększają efektywność.

5325.48 zł/m2

Co jest w zestawie?

→ izolację termiczną ścian zewnętrznych,

→ elewację - tynk silikatowo-silikonowy,

→ posadzki z izolacją i wylewką cementową,

→ ogrzewanie podłogowe

→ instalację wodno-kanalizacyjną oraz elektryczną

→ orynnowanie - rynny stalowe kwadratowe

→ ściany działowe GK

HIT!!!

Pakiet PREMIUM

Najbardziej optymalna oferta, niezależność energetyczna

- polecana przez DEXED HOME!

6644 zł/m2

Co jest w zestawie?

→ Wszystko z pakietu podstawowego

→ Wszystko z pakietu rozszerzonego

→ Ciepły fundament w cenie

→ System Niezależności Energetycznej   -  Dexed Energy System  5-w-1

→ pompa ciepła

→ wentylacja z rekuperacją

→ dach solarny

→ magazyn energii

PRZYJEDŹ!

Odwiedź dom pokazowy

Umów się z doradcą na dogodny termin

Aktualnie dostępne domy pokazowe w województwie pomorskim i mazowieckim

Zapisz się na dzień otwarty!

8 listopada: okolice Warszawy (Grodzisk Mazowiecki)

Zapisz się!

Zaufaj nam i zacznij budować swoją przyszłość już dziś.

© Copyright 2025 -DexedHome.pl

Kontakt z doradcą